back to Main Page

Weekend house plans Columbus OH

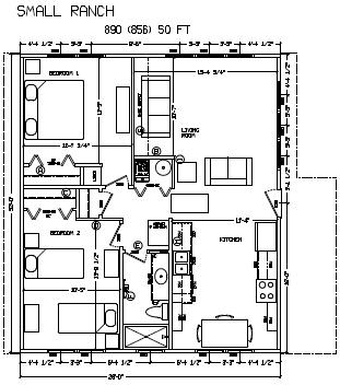
      900 sq ft 2-bedroom 1-bath
        slab foundation.
 1st Floor - large practical kitchen with breakfast area. Family room with extra windows. 2 bedrooms.  Large full bath. Stacked laundry in hall. Attic storage.

Image
Image
Image
Image
Image