back to Main Page

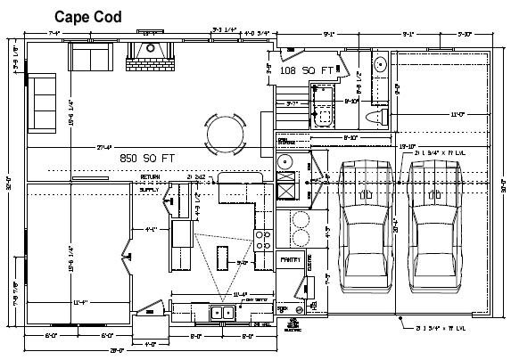
Cape Cod house plans Columbus OH

      1,800 sq ft 3-bedroom 2-bath
        2-car garage, slab foundation.
 1st Floor - large practical kitchen with direct access to the garage and large family room. Front office / studio. Large bath with laundry.

 2nd Floor - main bedroom over garage. Full bath. 2 more bedrooms. Alternate laundry location allows for shower in 1st floor bathroom.

Cape Cod
Image
Image
Image
Image
Image
Image
Image